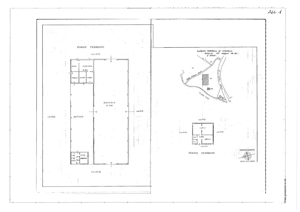
Codice V001773 - Capannone In Vendita A Vogogna (Dresio)
    In posizione strategica e di forte passaggio, a pochi metri dall’uscita dell’autostrada e direttamente sull’asse del Sempione, proponiamo in vendita capannone industriale con uffici per una superficie complessiva di circa 1.190 metri quadrati, completo di ampia area esterna di circa 17.000 metri quadrati. L’immobile si presenta da ristrutturare, offrendo ampie possibilità di personalizzazione in base alle esigenze dell’attività. Grazie alla posizione e agli spazi disponibili, rappresenta una soluzione ideale per imprese del settore logistico, autotrasporti o attività produttive che necessitano di ampi piazzali di manovra e stoccaggio.
    • Prezzo
      150.000,00 EUR
    • Classe
      VA
    • Mq
      1190
    • Locali
      2
    • Stato Immobile
      Da Ristrutturare
    • Via Nazionale Dresio , Vogogna (VB)

    Richiedi informazioni

    • Autorizzo il trattamento dei miei dati personali in base Regolamento UE n. 679/2016
    • Invia